Renoveringschans – ljus och välplanerad 3:a som kan bli en 4:a i stabil förening med pool och garage

Oerhört välplanerad 3:a med möjlighet att göras om till en 4:a, perfekt för dig som vill kombinera ett socialt hem med genomtänkta ytor. Bostaden ligger mitt på Södermalm, endast ett par hundra meter från Mariatorget, Slussen och Medborgarplatsen med deras rika utbud av restauranger, service och kommunikationer.

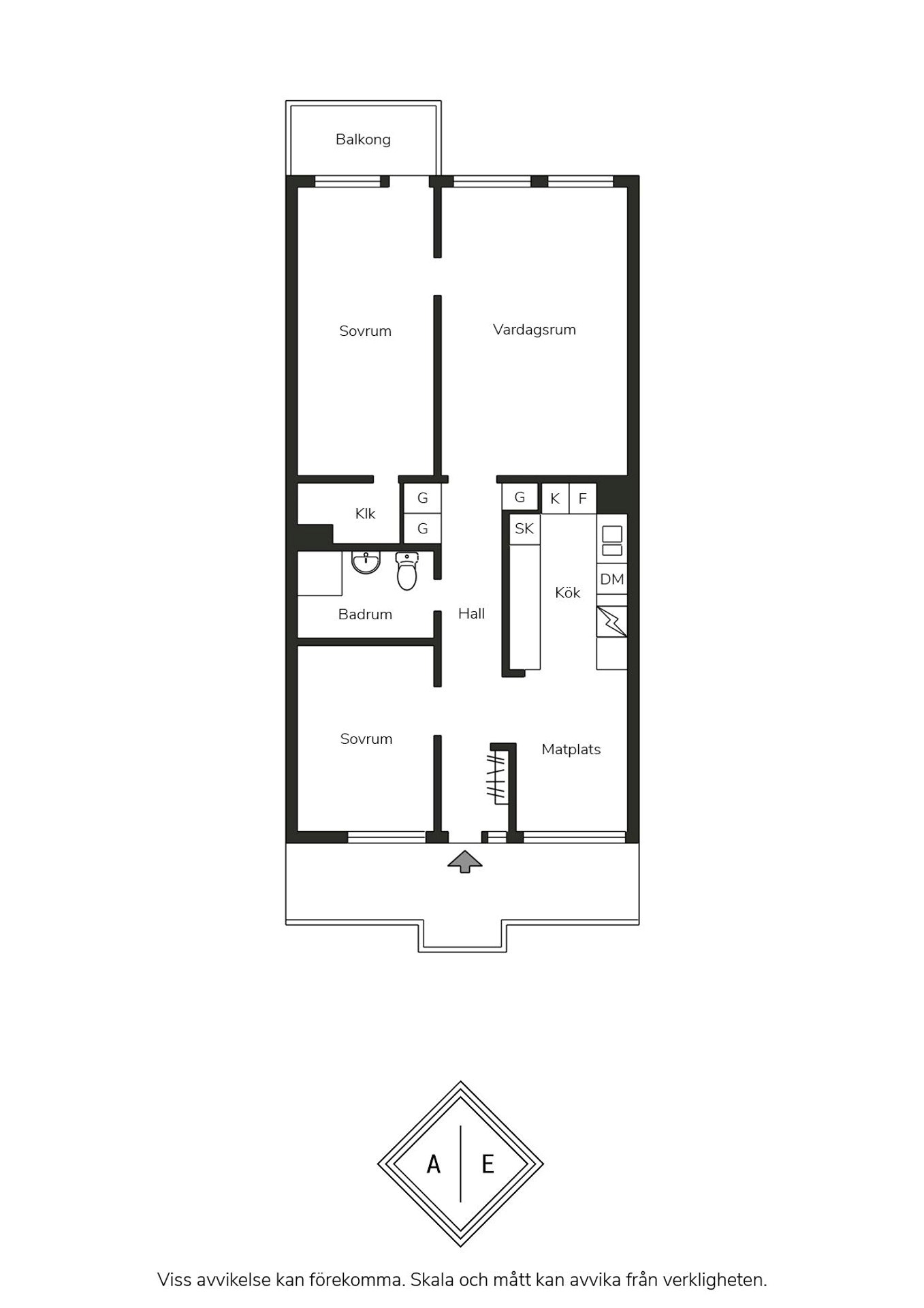
Stora fönsterpartier i två väderstreck skapar ett fantastiskt ljusflöde och en luftig känsla. Den inglasade balkongen i soligt söderläge bjuder på utsikt över takåsarna. I dagsläget finns två rymliga sovrum, men planlösningen möjliggör enkelt ett tredje. Badrummet är nyligen stambytt och helkaklat med tvättmöjligheter.

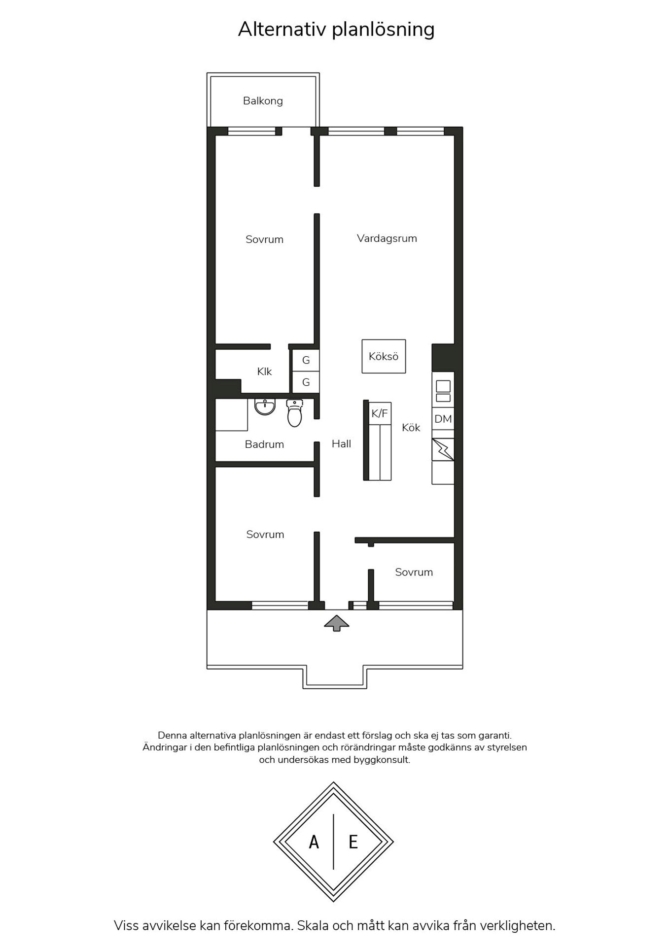
Här finns dessutom en utmärkt renoveringschans för dig som vill sätta personlig prägel och skapa ett hem helt efter egen stil och behov.

Bostaden tillhör en mycket populär och stabil förening med exceptionellt god ekonomi. Föreningen har en låg belåning om cirka 3 325 kr/kvm, en stark kassa på omkring 4,2 miljoner kronor samt betydande intäkter från fyra lokaler och garageplatser, som tillsammans genererade cirka 4,48 miljoner kronor under 2023. Föreningen äger dessutom marken. Lånen amorteras löpande med cirka 1,2 miljoner kronor per år och föreningen har även cirka 2,5 miljoner kronor placerade på placeringskonto.

Här bor du med tillgång till ett stort utbud av bekvämligheter: inomhuspool, bastu, gym, grönskande innergård, gemensam takterrass, två tvättstugor, förråd samt garage med laddstolpar (för närvarande kort kö) för endast 630 kr/mån eller 1 030 kr/mån inkl. el.

Ett hem som verkligen har allt – läge, ljus, balkong, generösa sociala ytor, stark förening och stor utvecklingspotential. Välkommen hem!

Högbergsgatan 50

Antal rum
3 rum
Boarea
75.6 kvm
Område
Södermalm
Bostadstyp
Lägenhet
Våningsplan
Våning 3 Hiss finns.
Månadsavgift
1 679 kr/mån
Henrik Duong Ansvarig mäklare [email protected] 076-396 57 55
Subhan Kaki Assisterande mäklare [email protected] 076-838 26 69

Visning

Kontakta ansvarig mäklare för bokning av personlig visning.

Vill du veta mer om bostaden?

Fyll i dina uppgifter nedan så kontaktar jag dig.
* obligatorisk uppgift
Äger du egen bostad? *
  • Bostadsinformation

    Upplåtelseform
    Bostadsrätt
    Adress
    Högbergsgatan 50
    Postadress
    11826 STOCKHOLM
    Område
    Södermalm
    Kommun
    Stockholm
    Lgh.nr
    402 (förening)
    Lgh.nr
    1302 (adressregister)
    Boarea
    75.6 m² (föreningens information)
    Antal rum
    3 rum och kök, varav 2 sovrum
    Månadsavgift
    1 679 kr/mån. I månadsavgiften ingår Värme, TV-basutbud från tele2, Internet 1000 Mbit/s och bostadsrättstillägg.
  • Hall

    Välkomnande hall med trägolv och ljusa väggar. Direkt innanför dörren finns praktiska avhängningsmöjligheter. Hallen övergår i en korridor som erbjuder gott om förvaring i form av flera garderober och leder vidare in till lägenhetens övriga rum.

    Kök

    Rymligt och funktionellt kök med generöst fönsterparti som släpper in rikligt med dagsljus. Här finns god arbetsyta och en komplett maskinell utrustning bestående av kyl, frys, spis, ugn, fläkt, diskho och diskmaskin. Köket har ljusa luckor, mörk träbänkskiva samt ett stilfullt mosaikstänkskydd. De ljusa väggarna och trägolvet skapar en harmonisk helhet. Här finns gott om plats för matbord och stolar för fyra personer.

    Vardagsrum

    I vardagsrummet fortsätter trägolvet tillsammans med ljusa väggar. Rummet får fint ljusinsläpp från två fönster och erbjuder gott om plats för en generös soffgrupp, soffbord, bokhylla och övrig möblering. En utmärkt social yta.

    Sovrum 1

    Trivsamt sovrum med grå väggar och trägolv. Här finns ett fönster som ger bra ljusinsläpp samt en praktisk skjutdörr. Rummet rymmer säng, sängbord och garderober.

    Sovrum 2

    Ljust sovrum med beiga väggar och trägolv. Här finns både ett fönster och en glasdörr som leder ut till lägenhetens inglasade balkong. Rummet erbjuder plats för säng, sängbord och garderober. Från sovrummet nås även en klädkammare via en separat dörr.

    Badrum

    Rymligt badrum med dusch, WC och handfat med spegel och förvaring. Här finns dessutom två badrumsskåp, spottar i taket och handdukstork. Rummet har blått klinkergolv och vita kakelväggar.

    Förråd

    Förråd finns till varje lägenhet.

  • Byggnadsinformation

    Uppvärmning
    Fjärrvärme
    Ventilation
    FTX,FT,F
    Våningsplan
    Våning 3. Hiss finns.
    Balkong
    Ja
    Bilplats
    Finns möjlighet att hyra garageplatser. 60 garageplatser, varav 17 laddplatser

    Energideklaration

    Status
    Utförd (2020-09-03)
    Primärenergital
    125 kWh/m2 och år
    Energiklass
    E
  • Föreningen

    Namn
    BRF Högberget nr 2
    Adress
    Högbergsgatan 50
    Org.form
    Bostadsrätt
    Org.nummer
    716416-4423
    Föreningens ekonomi
    Inga planer på avgiftsförändringar (kontrollerat 2025-12-09). Lån/kvm årsredovisning 2024: 2145 kr
    Äkta/oäkta förening?
    Äkta
    TV/bredband
    TV: Tele2, basutbud ingår i månadsavgiften. Anmälan till Tele2 krävs. Bredband: Ingår i månadsavgiften. Hastighet 1 000 Mbit/s (1 Gbit/s). Router ombesörjer medlemmen själv.
    Överlåtelseavgift
    1470 kr (betalas av Kopare)
    Pantsättningsavgift
    588 kr
    Tillåts juridisk person?
    Nej
    Tillåts delat ägande?
    Delat ägande godkänns avseende makar, registrerat partnerskap, sambor och föräldrar (minst 10% ägande för den som bebor lägenheten).
    Renoveringar
    Utförda renoveringar:
    2012- Utbyte av avloppsstammar i garagetaket.
    2012- Installation av styrutrustning till värmeundercentral.
    2013- Radonmätning genomförd (inga förhöjda halter).
    2013- Utbyte av låssystem i portar 46/50 samt på vinden.
    2014- Fönsterbyte av de fönster som inte är skyddade av loftgång/balkong.
    2015- Ny hiss installerad i port 46.
    2016- Ny hiss installerad i port 50.
    2017- Nytt bevakningssystem och nya bevakningskameror.
    2017- Nyanstallation av brandlarm i hela fastigheten.
    2018- Stambyte i hela fastigheten och renovering av samtliga badrum.
    2018- Renovering av tvättstugor.
    2018- Byte av samtliga fönster och balkongdörrar som inte byttes 2014.
    2018- Installation av elstigare och nya säkringsskåp i samtliga lägenheter.
    2019- OVK i hela fastigheten.
    2019- Installation av nya bastu- och duschutrymmen.
    2020- Åtta nya lägenheter färdigställda och sålda.
    2020- LED-armaturer installerade i trapphus 46 och 50.
    2020- Helrenovering av ytskikt i garage och ny belysning.
    2020- Garagerenovering.
    2020- Ny plattformshiss installerad i port 48.
    2021- Rengöring av ventilationskanaler.
    2022- Nya torktumlare installerade i port 46 och 50.
    2022- Installation av 11 laddstolpar.
    2023- Nytt digitalt bokningssystem i tvättstuga.
    2023- 5-årsbesiktning efter stambytet.
    2023- Renovering av soprum för matavfall och införande av matavfallshantering.
    2024- Spolning och rengöring av samtliga loftgångar och innergårdar.
    2024- Två nya pumpar installerade i pumpstationen.
    2025- Installation av nytt låssystem.
    2025- Renovering av samlingslokal.

    Kommande renoveringar:
    Inom 1-2 år planeras tätskikt på alla innergårdar renoveras (kontrollerat 2025-12-09).
    Parkering
    Antal garageplatser: 60 garageplatser, varav 17 laddplatser.
    Gemensamma utrymmen
    Föreningen erbjuder en rad välskötta och bekväma gemensamma utrymmen för att göra vardagen både smidigare och trivsammare.

    Garage:
    Normalplats i garaget finns att hyra för 630 kr/mån.

    Cykelplats:
    Cykelplatser finns lättillgängligt i garaget.

    Tvättstugor:
    Två välutrustade tvättutrymmen. Varje tvättstuga har två tvättmaskiner, torktumlare, torkskåp och kallmangel.

    Innegård:
    Grön och social mötesplats. Innergården erbjuder grillar och bekväma sittplatser för umgänge och avkoppling.

    Basu och poolavdelning:
    Avkoppling och välbefinnande. Avdelningen rymmer två bastur samt omklädningsrum, kompletterat av en trivsam poolmiljö.
    Om föreningen
    BRF Högberget nr 2 är en äkta bostadsrättsförening som registrerades år 1977. Föreningen består av totalt 78 bostadslägenheter med en sammanlagd yta om 4 933 kvm. Det finns 7 stycken tillgängliga lokaler, varav 4 hyrs ut. Resten finns att tillgå för medlemmarna med en total lokalyta på 2 252 kvm.

    Föreningens ändamål är att främja medlemmarnas ekonomiska intressen genom att i föreningens fastighet upplåta bostadsrättslägenheter med nyttjanderätt utan tidsbegränsning. Föreningen har sitt säte i Stockholm.
  • Ekonomi

    Månadsavgift
    1 679 kr/mån. I månadsavgiften ingår Värme, TV-basutbud från tele2, Internet 1000 Mbit/s och bostadsrättstillägg.
    Andel i föreningen
    1.42707%
    Andel av årsavgift
    1.41608%
    Indirekt nettoskuldsättning
    170 592 kr. Bostadsrättens indirekta nettoskuldsättning anger hur stor andel av bostadsrättsföreningens lån som indirekt belastar bostadsrätten. Andelen beräknas som andelstalet för avgifter multiplicerat med föreningens nettoskuldsättning. Den består av räntebärande skulder med avdrag för räntebärande tillgångar och likvida medel. Underlagen för beräkningen kommer från föreningen.
    Pantsatt
    Ej angivet

    Driftskostnader per år

    Hushållsel
    5 500 kr
    Försäkring
    3 000 kr
    Summa
    8 500 kr
    Driftkostnaderna är baserade på schablon och kan komma att variera efter egen förbrukning. I angiven driftkostnad ingår kostnad för el 5500 kr/år samt kostnad för hemförsäkring 3000 kr/år.
  • Fastighetsmäklaren

    Din fastighetsmäklare är med genom hela affären och ska tillvarata både köparens och säljarens intressen samt ge råd till både spekulanter och säljare (men samtidigt särskilt beakta säljarens ekonomiska intressen). Så tveka inte att ställa dina frågor.

    Objektsbeskrivning

    Mäklaren upprättar en objektsbeskrivning som beskriver bostadsrätten. Uppgifterna kommer från säljaren, föreningen och myndighetsregister, och kontrolleras normalt sett inte av mäklaren.

    Uppgiften om boarean kan av olika skäl avvika från den verkliga boarean, beroende på att standarden för hur man mäter bo- och biarea har varierat över tid. Därför uppmanas den köpare som anser att den exakta arean är av väsentlig betydelse att göra en uppmätning innan köpet.

    Intresserad av detta objekt?

    Är du intresserad av att gå vidare - meddela mäklaren ditt intresse så riskerar du inte att missa vid ett snabbt avslut. Försök att vara förberedd med lånelöfte från bank och ev. värdering av din nuvarande bostad.

    Utgångspunkt för ansvarsfördelningen vid överlåtelse av bostadsrätt

    Bostadsrätten ska efter köpet stämma överens med vad som avtalats mellan köpare och säljare samt vad köparen har fog att förvänta sig; sett i ljuset av bostadsrättens ålder, pris, skick och användning. Reglerna om fel i bostadsrätt finns i köplagen (eftersom en bostadsrätt är lös egendom) men vid prövning av fel och felansvar hämtas ofta inspiration från reglerna i jordabalken. En del av reglerna har också bildats genom praxis, efter att tvister om fel och felansvar har prövats av domstol.

    Köparens undersökningsplikt

    Köparens undersökning av bostadsrätten möjliggörs i regel genom att en visning av bostaden genomförs. Om köparen före sitt köp har genomfört en undersökning, får köparen inte i efterhand såsom fel åberopa vad som borde ha märkts vid undersökningen. Om köparen uppmärksammar något vid sin undersökning, och inte själv kan dra någon slutsats av detta, måste köparen gå vidare; t.ex. genom att anlita en sakkunnig, för att fullgöra sin undersökningsplikt. Annorlunda beskrivet kan köparen inte i efterhand åberopa något som ett fel, om det kan konstateras att omständigheten hade upptäckts om en sådan undersökning som varit påkallad hade genomförts.

    Köparen bör också tänka på att säljaren inte ansvarar för fel eller brister som köparen borde ha räknat med eller borde förväntat sig. Skulle t.ex. ett fel uppstå på någon av lägenhetens vitvaror kan det vara något köparen borde räkna med, med hänsyn till dess ålder och beräknade livslängd. Köparens skyldighet att undersöka omfattar inte enbart bostadsrätten utan även förhållanden kring bostadsrättsföreningen bör granskas, t.ex. om föreningen ska genomföra större renoveringar, höja sina avgifter eller liknande. En kontakt med företrädare för föreningen bör därför ingå i köparens undersökning, liksom genomgång av stadgarna och senaste årsredovisningen.

    Säljarens skyldigheter och betydelsen av att bostadsrätten överlåts i befintligt skick

    För att säljaren ska bli ansvarig för ett påstått fel, när bostadsrätten säljs i befintligt skick, krävs att omständigheten innebär att bostadsrätten är i väsentligt sämre skick än vad köparen med hänsyn till ålder, pris, användning och övriga omständigheter med fog kunnat förutsätta. Att bostadsrätten överlåts i befintligt skick kan alltså beskrivas som en form av ansvarsbegränsning för säljarens del.

    Emellertid åvilar det säljaren att upplysa om väsentliga förhållanden rörande bostadsrätten. Även om bostadsrätten sålts i befintligt skick, kan den alltså anses vara felaktig om säljaren före köpet har undanhållit omständigheter av betydelse för köparen. Om säljaren på detta sätt handlat i strid mot tro och heder, kan säljaren inte invända att köparen brustit i sin undersökningsplikt. Det ligger alltså i säljarens eget intresse att upplysa köparen om fel eller symptom på fel som säljaren känner till - eller misstänker. Det som säljaren redovisat kan i normalfallet inte senare åberopas av köparen som fel.

    Vidare ansvarar säljaren för utfästelser säljaren lämnar. Utfästelser kan också innebära att köparens skyldighet att undersöka ett visst förhållande minskas som följd av en sådan. Allmänt lovprisande eller generella uttalanden betraktas dock inte som utfästelser.

    Avtalsfrihet

    Denna information beskriver, kortfattat, den ansvarsfördelning som enligt lag gäller mellan köpare och säljare. Emellertid råder avtalsfrihet i frågan om ansvarsfördelningen vilket innebär att parterna kan avtala om en annan fördelning än den som beskrivits ovan. Som exempel kan nämnas när en säljare friskriver sig från ansvar genom en friskrivningsklausul, eller när en dolda fel-försäkring tecknas för objektet.

    Budgivning

    Om det finns flera intressenter kan det bli budgivning och då kan slutpriset bli ett annat än utgångspriset. Berätta innan budgivningen om dina önskemål om tillträdesdag, eventuella lånevillkor, försäljning av din nuvarande bostad etc. Det finns ingen lag som reglerar hur en budgivning ska gå till. Det är säljaren som bestämmer om, hur och till vem denne säljer. Mäklaren framför alla bud till säljaren och upprättar en förteckning över buden. Budgivningslistan lämnas även till köparen, med namn och kontaktuppgifter till budgivarna. Budgivare kan därför inte vara anonyma (men kan lägga bud via ombud).

    Fast och lös egendom

    I jordabalken finns bestämmelser och exempel på vad som är fast egendom och vad som är tillbehör till fastighet och byggnad och därmed ingår i den fasta egendomen. Allt annat som inte omfattas av reglerna om den fasta egendomen och tillbehören till denna är att betrakta som lös egendom. I samband med fastighetsöverlåtelser får köpare och säljare ofta anledning att fundera över dessa frågor. Om tveksamhet skulle uppstå får vi rekommendera att skriftlig överenskommelse träffas, som reglerar vad säljaren avser att ta med sig från fastigheten.

    Fastighetstillbehör

    Som fastighetstillbehör räknas föremål som av fastighetsägaren har tillförts fastigheten för stadigvarande bruk. Avsikten vid tidpunkten för anbringandet ska vara att föremålet ska förbli permanent på fastigheten.

    Exempel: Byggnad (inklusive lekstuga, växthus, uthus eller annan anläggning). Ledning för gas, el, vatten och avlopp. Stängsel. Flaggstång med lina. Buskar och träd. Brevlåda. Soptunna. Sandlåda. Oljetank. Friggebod. Bojstenar och boj. Torkvinda. Solur. Grindar. Flytbrygga.

    I det följande redovisar vi exempel på tillbehör, som kan räknas som fast egendom och således ingår i köpet. Om säljaren skulle vilja undanta vissa fasta tillbehör är detta möjligt, om parterna överenskommit detta i kontraktet. Viktigt är att notera härvid, att ett föremål inte är att betrakta som lös egendom förrän det faktiskt bortförts från fastigheten respektive byggnaden. 

    Den följande förteckningen är inte uttömmande, utan endast ett försök till att komplettera de exempel som redan finns i andra kapitlet jordabalken. Man bör också som säljare vara medveten om att utvecklingen går i den riktningen, att fler och fler föremål kommer att räknas som fastighetstillbehör. 

    Ett exempel härpå är TV-antennen. När tv var en ovanlig företeelse i svenska hem räknades antennen till lös egendom, medan den numera tveklöst får anses vara ett tillbehör till byggnaden. Parabolantenn är ett modernt exempel på gränsfall, där säljare och köpare bör avtala om den ska ingå.

    Byggnadstillbehör

    Som byggnadstillbehör räknas föremål som byggnaden blivit försedd med av fastighetsägaren och som är ägnade för stadigvarande bruk. Begreppet stadigvarande bruk anger att det ska finnas en ändamålsgemenskap eller funktionsgemenskap mellan föremålet och byggnaden. Bedömningen ska ske objektivt. Föremålet ska normalt sett vara till nytta oavsett vem som äger eller nyttjar fastigheten.

    Exempel: Garderober (inklusive inredningsdetaljer). TV-antenn. Parabolantenn. Heltäckningsmatta (om denna utgör ordinarie golvbeläggning). Spis. Kylskåp. Frys. Toalett- och badrumsinredning. Spisfläkt. Badkar. Badrumsskåp. Radiatorer. Centraldammsugare. Tvättmaskin. Torkskåp. Torktumlare. Mangel. Duschkabin. Fönsterbräden. Ledstång. Samtliga dörrnycklar. Markiser. Persienner. Tjuvlarm. Brandlarm. Stege för sotning. Fönsterluckor. Innanfönster. Gnistgaller. Hatthylla. Porttelefon. Braskamin.

    Gränsfall och undantag

    Exempel på gränsfall är fristående mikrovågsugn och dekoder till parabolantenn. Extrautrustning såsom kompletterande frysbox är exempel på undantag och utgör inte byggnadstillbehör. Där tveksamhet uppkommer rekommenderas att skriftlig överenskommelse träffas. Om säljaren skulle vilja undanta vissa fasta tillbehör är detta möjligt - om parterna överenskommer om detta i kontraktet.

    Bostadsrätter

    Bostadsrätter är lös egendom och regleras av köplagen. För att bedöma vad som ingår i köpet tillämpas i princip samma regler som för fastigheter. Det innebär att befintlig utrustning som finns uppräknad ovan ingår i köpet. Samma utgångspunkt gäller även vid beskattningen av bostadsrätt.

    Avtalsskrivning

    Fastighetsmäklaren upprättar köpehandlingarna och går igenom dessa med parterna. Muntliga avtal är inte bindande. Ett bindande köp föreligger först när ett skriftligt överlåtelseavtal har undertecknats och utväxlats. Därför brukar det ligga i alla parters intresse att skriva avtal så snart som möjligt. Kontrollera noga att alla avtalshandlingar stämmer överens med vad som sagts/överenskommits samt med det material du tidigare fått. Fråga fastighetsmäklaren om något är oklart.

    Handpenning

    Mäklaren ska verka för att köparen betalar en handpenning (i regel 10 %) som vanligtvis deponeras på ett särskilt klientmedelskonto. Detta sker då köpet är villkorat, t.ex. av att köparen beviljas medlemskap i föreningen. Resten av köpeskillingen betalas vid tillträdet.

    Tillträde

    På tillträdesdagen träffas parterna vanligtvis hos mäklaren, där slutbetalning hanteras. Mäklaren upprättar innan en likvidavräkning där det framgår för parterna och deras banker, vad som redan betalats och vad som återstår att betala. Mäklaren överlämnar även en journal över förmedlingen. Vid tillträdet får köparen dessutom nycklar m.m. Genom tillträdet är fastighetsmäklarens uppdrag avslutat och mäklarens skyldigheter gentemot både köpare och säljare upphör därmed.

    Personuppgifter

    Som visningskund och senare eventuellt som budgivare eller köpare, hanterar mäklarföretaget dina personuppgifter, enligt GDPR, för att kunna ge dig service och uppfylla lagkrav. För vidare information om hur dina personuppgifter behandlas kontakta din fastighetsmäklare.

    Information

    Ovanstående uppgifter är grundade på av säljaren och av berörd förening lämnad information. Köpare/spekulanter uppmanas att kontrollera dessa uppgifter med föreningen rörande lediga p-platser, kommande renoveringar och eventuella avgiftsförändringar. Köpare/spekulanter är medvetna om att bostaden köpes i befintligt skick och uppmanas att undersöka bostaden ordentligt.

    Köparen uppmanas att kontrollera bostadens bo- och biarea om denna är väsentlig för köparen.

    Om en personlig boendekostnadskalkyl önskas - vänligen kontakta ansvarig fastighetsmäklare.

    Nedtagning av väggar och/eller väsentliga förändringar, ingrepp i bärande konstruktioner och ändring av ledningar för avlopp, värme, gas eller vatten av en lägenhet är alltid en fråga för föreningens styrelse att ta ställning till i varje enskilt fall. Detta gäller även om förändringen inte medför risker för byggnadens konstruktion.

    Jämförelsepriser

    Som en service till våra kunder visar vi slutpriser och information om Alicia Edelmans förmedlade bostäder på vår hemsida, i utskick och som statistik i media. Det kommer också att gälla för den här bostaden.

    Pris

    I Alicia Edelmans bostadsannonser i dagspress och på Internet anger vi prisnivån pris, vilket uppdragsgivaren har accepterat som ett tänkbart försäljningspris. Uppges accepterat pris innebär det att priset som anges i bostadsannonsen ligger på en nivå som säljaren är villig att acceptera som slutpris. Säljaren och mäklaren kommer gemensamt fram till nivån på det accepterade priset som även ligger inom ramen för mäklarens värdering av bostaden. Om flera bud finns kan dock budgivning förekomma och priset bli högre. Det råder enligt lag alltid fri prövningsrätt för säljaren vilket innebär att denne har rätt att själv välja om bostaden ska säljas, till vem och till vilket pris, även om accepterat pris har angetts. Alicia Edelman tillämpar budgivning enligt de krav som anges i Fastighetsmäklarlagen (2021:516) 3 kap. 18 §. Endast lagda bud som godkänns av säljaren anges på www.aliciaedelman.se samt andra aktuella hemsidor.

    Information om s k sidoverksamhet

    Enligt god fastighetsmäklarsed ska mäklare, som i anslutning till sin förmedlingsverksamhet, ägnar sig åt annan verksamhet, s k sidoverksamhet, redovisa detta skriftligen till säljare och köpare. Av informationen ska det framgå vad verksamheten avser och i de fall det är fråga om förmedling av en tjänst som annan utför ska det även framgå vem som är uppdragsgivare eller samarbetspartner. Av informationen ska det även framgå vilken ersättning som utgår, eller kan komma att utgå, och om ersättning lämnas till mäklaren direkt eller indirekt. Med hänvisning till ovanstående lämnas härmed följande information om sidoverksamhet.

    Uppdragsgivare: Flyttsmart AB
    Verksamhet: Flyttjänster
    Fast administrationsersättning: 25%
    Direkt/Indirekt: Indirekt

    Uppdragsgivare: Hemnet Service HNS AB
    Verksamhet: Annonsadministration
    Fast administrationsersättning: 600 kr
    Verksamhet: Tilläggsprodukter
    Rörlig ersättning: 10%-30%
    Direkt/Indirekt: Indirekt

Alicia Edelman

Inspireras av våra hem